为盘活国有资产,实现保值增值。根据国有资产管理的有关规定和要求,拟对烟台海上世界规划展示中心部分区域实行公开招租,现就有关本次招租的具体事项公告如下:
一、招租资产基本情况
1、项目地点:芝罘区烟台港集团一突堤东南角,四至范围:东南西北均至规划道路。
2、项目概况:烟台海上世界规划展示中心占地面积约12616平方米,建筑面积约4182平方米,地上局部二层;最高高度13.5米,最大跨度19.35米;结构类型为框架结构。

二、招租范围
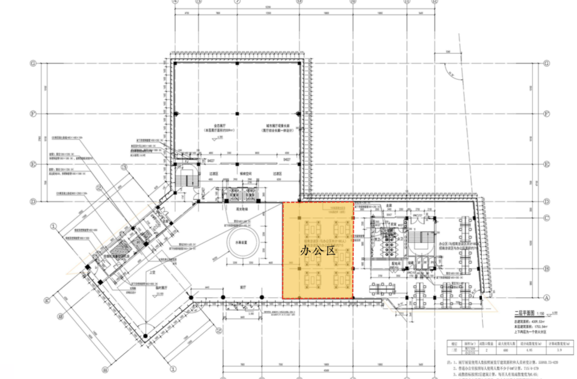
招租区域(不含公摊区域)位置如下图:

展厅二层招租区域
三、招租方式
公开招租。
四、招租对象
中华人民共和国境内外的法人、自然人或其他组织,除法律另有规定者外,均可参加竞租。
五、租赁要求
1、承租人可对室内租赁区域进行装修改造,但装修的方案、布局、风格需提前报招租人审评同意,且装修改造不得破坏房屋所有设备、系统、管道等,否则由承租人承担维修费用。
2、承租人租赁此房屋仅作为办公使用而不作其他任何用途,除招租方同意外,承租人不得转租承租区域。
3、承租人承担承租区域的水电费,收费标准按照公共事业部门的规定执行。
4、承租人需接受物业管理公司——招商财金物业的统一管理,因承租人原因导致房屋损坏的费用由承租人承担。
5、承租人对承租区域的使用需不影响展厅日常各级观摩活动的开展、各级会议的召开,如遇突发特殊事件承租人需无条件配合招租人安排。
6、承租人负责承租区域自有设备的正常维护、维修。
六、报名方式
凡有意参加招租的单位或个人,须在我公司办理有关报名手续后,方可参加招租活动。单位凭营业执照、法人证明或法人委托书、公章办理;个人凭身份证办理招租报名手续。
七、报名时间
公告之日起至2022年2月19日下午17:00时止。
八、报名地点
烟台市芝罘区海港路23号海上世界展示中心。
九、联系人
林高峰 电话:13385458896
烟台市财金孚泰实业有限公司
2022年2月15日


0535-6887256
YTCJ_zhb@ytcjjt.cn
烟台市莱山区科技大道59号 yl23455永利集团官网大厦 16-23F